Rozpoczęła się budowa kameralnego osiedla domów jednorodzinnych, zlokalizowanego na uboczu ścisłego centrum Grójca.
Osiedle składać się będzie z dziewięciu budynków jednorodzinnych w zabudowie szeregowej, każdy o powierzchni ok. 155,00 m2 plus strych.
Osiedle Laskowa to doskonałe miejsce do życia dla osób chcących mieszkać wygodnie blisko centrum miasta ciesząc się jednocześnie ciszą i spokojem. Sytuacja związana z ogólnoświatową pandemią COVID-19, jeszcze mocniej uwypukliła korzyści płynące z mieszkania w indywidualnej w zabudowie jednorodzinnej.
W otoczeniu Osiedla Laskowa znajduje się wszystko co niezbędne do codziennego życia: sklepy, urzędy, restauracje czy obiekty sportowe. Osiedle jest połączone ze ścisłym centrum Grójca w linii prostej ulicą Laskową, którą spacer na miejsce zajmuje zaledwie 15 minut.
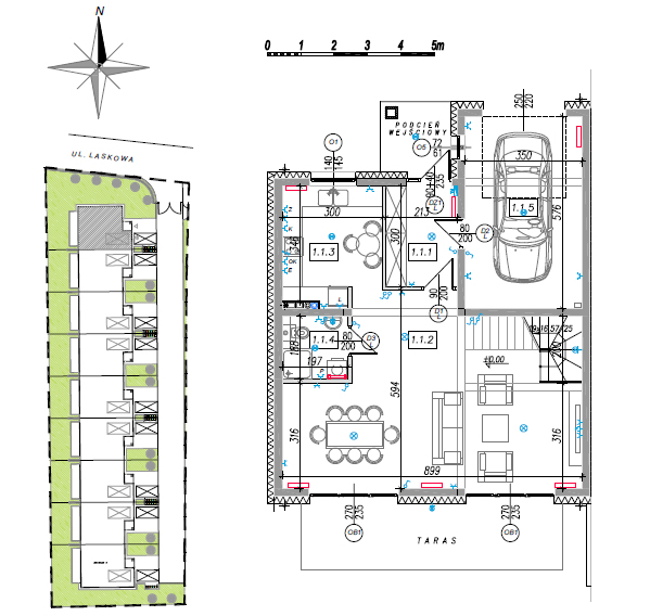
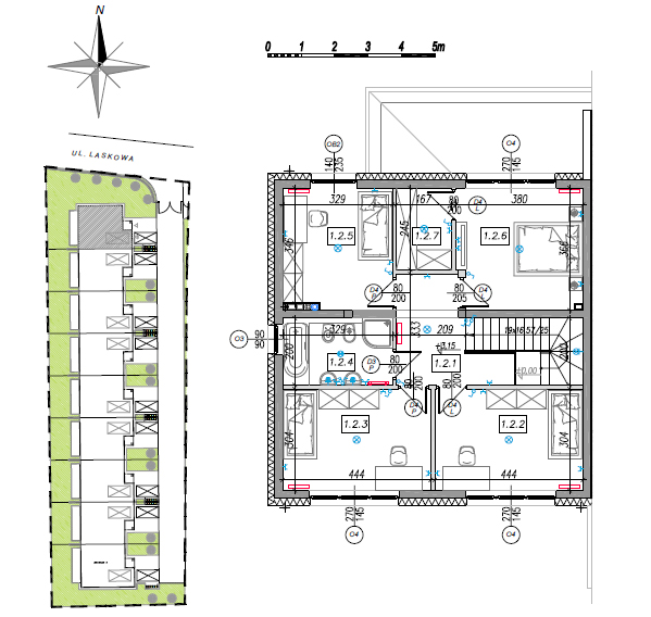
Funkcjonalność
Każdy z domów, wchodzących w skład Osiedla Laskowa, oferuje dużą przestrzeń do życia rozłożoną na kondygnacje parteru i piętra, także poddasze. Całość wieńczy taras prowadzący na prywatny teren zielony w postaci ogródka. Układy funkcjonalne apartamentów są starannie przemyślane pod kątem użytkowania. Dodatkowo, konstrukcja obiektu jest tak zaprojektowana, aby umożliwić w szerokim zakresie indywidualne zmiany i aranżacje. 
Parter - kliknij TUTAJ aby pobrać w wersji PDF

Piętro - kliknij TUTAJ aby pobrać w wersji PDF

Strych - kliknij TUTAJ aby pobrać w wersji PDF
Lokalizacja
Osiedle Laskowa jest zlokalizowane w odległości ok. 1 km od centrum miasta Grójec. Inwestycja jest położona wśród zabudowy jednorodzinnej. Umiejscowienie Osiedla Laskowa zapewnia wygodny dostęp do usług pierwszej potrzeby takich jak: sklepy, urzędy, restauracje, szkoły i przedszkola czy obiekty sportowe.
KOMUNIKACJA - wjazd na drogę ekspresową S7 – ok. 5 min jazdy samochodem
REKREACJA:
1) Park im. Józefa Piłsudskiego – ok. 15 minut pieszo
2) Kompleks parkowo – pałacowy w Krobowie – ok. 15 minut pieszo
BUDYNKI UŻYTECZNOŚCI PUBLICZNEJ:
1) Przedszkole publiczne nr 1 – ok. 450 m
2) Urząd Miasta i Gminy – ok. 600 m
3) Szkoła podstawowa nr 1 – ok. 850 m
USŁUGI:
1) Grójecki Ośrodek Sportu Mazowsze – ok. 700 m
2) Grójecki Ośrodek Kultury – ok. 15 minut pieszo
3) Powiatowe Centrum Medyczne w Grójcu – ok. 5 minut jazdy samochodem
Kontakt dla zainteresowanych:
Tel. 609 442 978
E-mail: gzinvestments@investments.biz.pl














11 godzin temu
Trzech kandydatów na nowego wójta gminy Chynów [SONDA]
13 godzin temu
Jest nowy komunikat sanepidu w sprawie jakości wody w Grójcu
19 godzin temu
Zwrot w sprawie nocnej prohibicji w Grójcu! Jest ruch wojewody
wczoraj, 23:57
Wraca temat nocnej prohibicji w Grójcu. W czwartek decyzję podejmie Rada Miejska
wczoraj, 23:44
Ogłoszenia